仕様詳細Spec
-
4LDK
-
敷地面積 166.16m² (50.26坪)
-
延床面積 99.38m² (30.06坪)
-
1F面積 49.69m² (15.03坪)
-
2F面積 49.69m² (15.03坪)
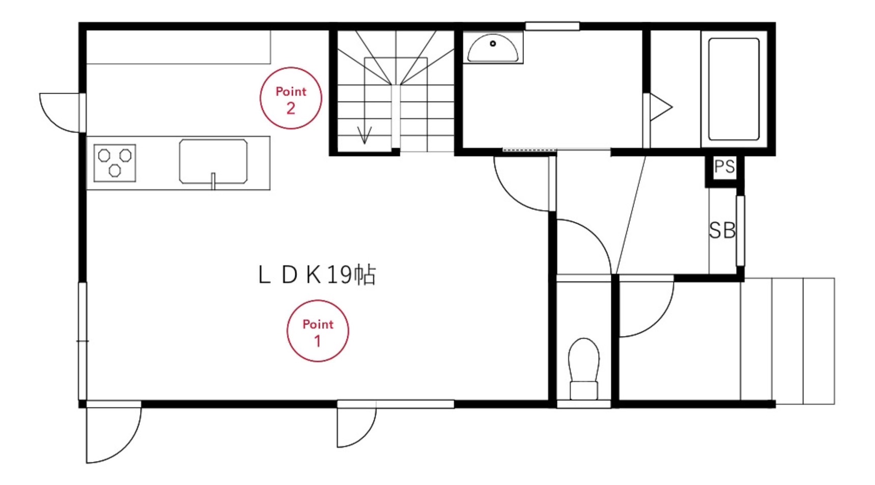
1階平面図1F

- LDK :19帖
2階平面図2F

- 洋室 :7.5帖 / CL
- 洋室 :6帖 / CL
- 洋室 :6帖 / CL
- 洋室 :6帖 / CL
ポイントPoint
Living

- 吹き抜け
- 間接照明
- ナチュラル
- 挽板フローリング
- ウッドワン
挽板フローリングを使用したナチュラルテイストで温かみのある色合いでまとまっています。 吹き抜けもあり日当たりも良く 間接照明もあるので、昼と夜ではまた違う雰囲気になります。
Kitchen

- 間接照明
- タカラスタンダード
- オフェリア
カップボード上には間接照明を使用し、おしゃれな空間での料理を楽しめます。 キッチンはカラーバリエーションも豊富で、ホーローを使用したタカラスタンダードを採用しています。
Open Ceiling

- 吹き抜け
- ルーバー
木のルーバーの間から光が差し込み、自然光の温かさを際立ててくれます。
room

- マリメッコ
- オープンクローゼット
洋室の収納はあえてオープンにすることで、花柄のクロスが部屋のアクセントに。
アフターサービスAfter Service
-
定期点検
入居後も住宅の安全を確認するため、一定期間ごとに専門スタッフが点検。長く快適に暮らせるようサポートします。
-
瑕疵保証瑕疵保険(10年)
入居後も住宅の安全を確認するため、一定期間ごとに専門スタッフが点検。長く快適に暮らせるようサポートします。
-
地盤保証
建築前の地盤調査を実施し、不同沈下などのリスクに対応。万が一問題が発生した場合は補修費用を保証します。
-
設備保証(有償)
キッチン・給湯器・エアコンなどの住宅設備の故障に対応。保証を追加することで修理費の負担を軽減できます。
Inquiry お問い合わせ
下記からお問い合わせ内容をお選び下さい。
お問い合わせフォーム
【デザイン×コスパ】
Asterコンセプトモデルハウス見学予約フォーム(完全予約制)
自然な木目が美しいレッドシダーインテリアと、
やわらかなデザイン間接照明が織りなす上質な空間。
ペニンシュラキッチンを中心に据えたこの空間は、
重厚感と高級感を兼ね備え、
機能性と美しいデザイン性を両立しています。
細かなところにこだわり尽くした設計が美しく洗練された雰囲気を演出し、一歩足を踏み入れた瞬間に心がときめく、
モデルハウスをご体感いただけます。
- 所在地:
-
札幌市東区東苗穂6条2丁目14-26


